3 2

3 bed House - Detached - Sold Subject to Contract
Cayser Drive, Kingswood
£535,000

Nestled in the charming village of Kingswood, Cayser Drive presents a stunning and well-presented 3/4 bedroom detached house that is perfect for families seeking both comfort and convenience. This delightful property boasts large living space, featuring three spacious bedrooms and two modern bathrooms, making it an ideal home for those who appreciate both style and functionality.

EPC band B

A more detailed description:

As you enter, you are greeted by two inviting reception rooms that offer ample space for relaxation and entertaining. The modern décor throughout the home creates a warm and welcoming atmosphere, ensuring that you feel right at home from the moment you step inside. The property also includes the added benefit of air conditioning, providing comfort during the cooler months.

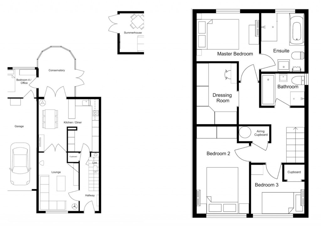
On the ground floor, you’ll find a spacious and light living room with a log burner, which leads through to a large kitchen/diner with plenty of storage and built in appliances. To the rear of the property is a home office or fourth bedroom, along with a modern fitted conservatory featuring a tiled roof. There is also the additional benefit of a downstairs WC.
Upstairs, the first floor offers a stunning and spacious master suite, complete with its own walk-in wardrobe and dressing room, a double bedroom, and a large en-suite bathroom with a Jacuzzi bath, shower, WC, and wash basin. In addition, there are two further bedrooms — the second being a double with large floor-to-ceiling fitted wardrobes, and the third a smaller bedroom, again with fitted wardrobes. Lastly, the family bathroom includes a bath, separate shower cubicle, WC, and wash basin.

Externally, the property features a delightful outdoor kitchen and patio area, a summer house with lighting and electrics, and a large garage.
For those with electric vehicles, the property is equipped with an electric car charging point, showcasing a commitment to modern living. The large garage offers ample storage space, while the charming summer house in the garden provides the perfect retreat for leisure or hobbies. The property has gas cetral heating, council tax band E, log burner and air con.

Situated in a lovely village location, this home is within walking distance of local schools and bus links, making it convenient for families and commuters alike. Built in 1971, this property combines classic charm with contemporary amenities, making it a truly desirable residence.

In summary, this exceptional detached house on Cayser Drive is a rare find, offering a harmonious blend of modern living and village charm. Whether you are looking to settle down or invest, this property is sure to impress.

Disclaimer

All dimensions are approximate and any floor plans are for guidance purposes only. References to appliances and/or services does not imply that they are necessarily in working order. Whilst we endeavour to make our sales particulars as accurate as possible, all interested parties must themselves verify their accuracy.

Floorplans For Cayser Drive, Kingswood
EPC For Cayser Drive, Kingswood
Arrange a viewing for Cayser Drive, Kingswood

For further details on this property please call us on:
01622 763322

Brochure Download PDF Arrange Viewing

Share