2 1

2 bed House - Semi-Detached - Let Agreed
Oast View, Sutton Valence, Maidstone
£1,450pcm

We are proud to offer this stunning 2 bedroom semi-detached house which has been built and decorated to an exceptionally high standard set in the rural village of Sutton Valence. Set down a quiet cul-de-sac in a sought after location, this property is unlike most two beds as the overall square footage is similar to the size of a 3 bedroom property.

This modern home is within close proximity of Tenterden and Headcorn and just a short drive to Maidstone Town Centre offering plentiful shops, restaurants and amenities.

This property is available From 27 October 2025 and unfortunately because of the site management company no commercial vans are allowed.

The affordability criteria for this property is a household income of £43,500pa.

Full property description:

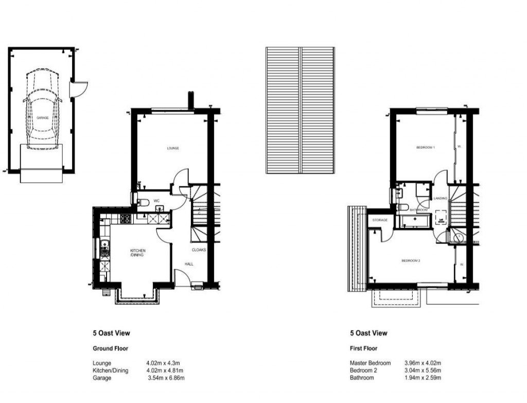
Large entrance hallway
Kitchen diner with modern wall and base units and fitted appliances
Lounge with patio doors to rear garden
Master bedroom with built-in wardrobes
Second bedroom - double bedroom with built-in wardrobes
Bathroom consisting of bath, WC, basin and seperate shower cubicle
Rear garden with a patio area and mainly laid lawn. Side access and access to garage
Garage large enough to fit a car in and storage and benefits from power and light

Additional Information:

This property benefits from off road parking and garage
Maximum number of tenants is 2

Floorplans For Oast View, Sutton Valence, Maidstone
EPC For Oast View, Sutton Valence, Maidstone
Arrange a viewing for Oast View, Sutton Valence, Maidstone

For further details on this property please call us on:
01622 763322

Brochure Download PDF Arrange Viewing

Share